球速体育- 球速体育官方网站- APP下载3款120平米的二层农村自建房建筑主体造价仅需15万

发布日期:2025-11-01 20:05:50 浏览次数:

  球速体育,球速体育官方网站,球速体育APP下载虽然现在农村的整体实力提升了,但是土豪毕竟还是少数,所以想要建一栋真正的农村别墅,没有一定的资本积累还是挺困难的。而且现在大多数的年轻人都选择在城市打拼,虽然爱买商品房首付的钱足够盖一栋不错的小别墅,可一般人还是会选择贷款买房。可要是连首付的钱都没有,那是不是就注定住不上新房呢?本期,我们推荐3款占地120平米的农村自建房,都是二层的结构,建筑主体造价仅需15万,绝对是经济又实惠。

  建筑设计尺寸:开间11.7米,进深9.6米,建筑占地120平米,总建筑面积224平米;建筑一层设计两室两厅一卫,厨房居中设计,卫生间带洗衣房,二层设计三室两厅一卫;

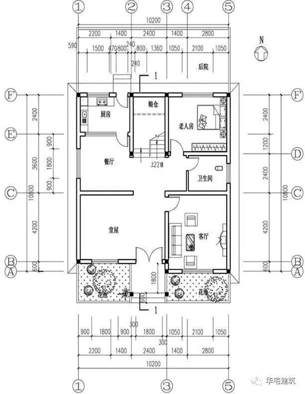
  建筑设计尺寸:开间11.7米,进深10.5米,占地122平米,总建筑面积218平米,设计功能:建筑一层设计一室两厅一卫,楼梯间做小粮仓,厨房在建筑东北角,餐厅开后门,卫生间带洗衣房;二层设计有三室一厅一卫,室外有大露台供休闲娱乐;

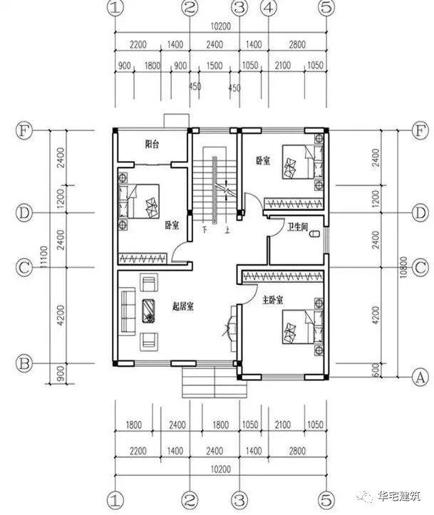
  户型设计尺寸:开间10.2米,进深13.2米,户型占地118平米,总建筑面积218平米,设计功能:建筑一层设计有堂屋和一室两厅一卫,楼梯间做粮仓,厨房开后门设计在建筑西北角,二层设计有三室一厅一卫。

  三款设计方案,外形相差无几,占地非常小巧,装饰简洁明了,内部结构简单,第三款自带堂屋,前两款也可隔离出堂屋的空间,四间卧室的设计足够一般的农村家庭使用,并全部用砖混结构建成,这才是使用级别的农村自建房设计方案,按照现在农村市场的建造价格,建筑主体结构造价不会高于15万,非常适合那些资本积累较少的家庭。